



Schiebetür mit Schiebetürzarge brillant-weiß 3 Rillen aufrecht Schlossseite - Modell Designtür VS33
Höhe x Breite
ungekürzt für Wandöffnung: Höhe 199,5 - 203,5 cm | Breite 87,5 - 91,5 cm | Zusätzlich unten um 50 mm kürzbar
Wandstärke
DIN Richtung

- Lieferzeit:
- 10-11 Wochen


Sie messen, wir bieten an
Ganz einfach Türen bestellen!
Laden Sie sich einfach unser Aufmaßformular herunter, füllen es aus und senden es uns per Mail oder Whatsapp. Wir erstellen Ihnen ein individuelles Angebot mit allen benötigten Produkten.
Ihr Angebot können Sie mit einem Klick annehmen!
Auf Nummer sicher gehen
Oberflächenmuster bestellen
Bestellen Sie einfach und sicher Ihr Oberflächenmuster und machen Sie sich ein Bild von der Oberfläche in den eigenen vier Wänden. Halten Sie die Muster an vorhandene Türen, Boden- oder Wandbeläge oder an Ihre Möbel.
- brillant-weiß ähnlich RAL 9003
- Hochwertige Röhrenspan-Mittellage
- Optik mit 3 Rillen aufrecht an der Schlossseite | V-Fuge 3mm breit | 1mm tief
- Türblatt mit 7-schichtigem hochwertigen Lackaufbau
- Lösemittelfrei und zertifiziert emmissionsarm
- Zarge mit besonders robuster CPL Oberfläche
- Zarge mit moderner Designkante (eckige Optik, leicht abgerundet, 2-3 mm Radius)
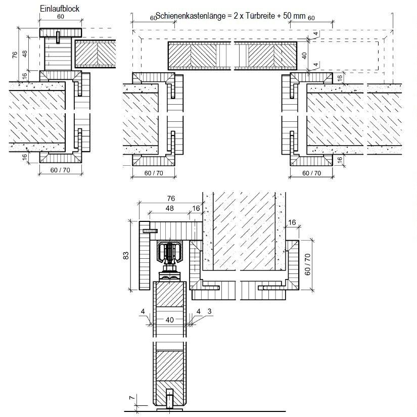
- Umbug der Zarge (Stärke der Bekleidung): 16 mm
- Bekleidungsbreite der Zarge: 70 mm
- Leicht und schnell zu montieren
Brillant-weiß (seidenmatt)
Bei unserem Farbton brillant-weiß handelt es sich um ein helles Weiß, ähnlich RAL 9003. Das moderne Weiß wird häufig mit extraweißen Wandfarben und modernen hochweißen Möbeln kombiniert. Besonders im Neubau & der Kernsanierung, sowie bei modernen Rillentüren ist das kalte Weiß sehr gefragt. Die Oberfläche ist seidenmatt.
Wohngesunder und umweltfreundlicher Weißlack

Zum Einsatz kommen nur hochwertige, UV-gehärtete, lösemittelfreie und emmissionsarme Lacke auf Wasserbasis. Der Lack wird in 7-Schichten in einem Spritzlack-Verfahren aufgebracht und ist dadurch besonders robust und homogen. Das Ergebnis ist eine fühlbar glatte Oberfläche.
Und das Beste: Dass die Türen emissionsarm und schadstoffarm sind, hat sogar der TÜV Rheinland zertifiziert!
Hochwertige Röhrenspan-Mittellage
Diese Tür hat eine hochwertige Mittellage aus einer Röhrenspanplatte. Im Vergleich zu Türen mit einer günstigen Waben-Einlage, zeichnet sich die Röhrenspan-Mittellage durch eine viel bessere Stabilität und viel besseren Schallschutz aus. Durch das höhere Gewicht, wirkt die Tür außerdem beim Öffnen und Schließen sehr wertig.
Unsere Türen mit Röhrenspan-Mittellage sind bauseitig je nach Modell um 1,5 - 5 cm kürzbar. So können Sie Tür und Zarge vor Ort kürzen, falls Ihre Maueröffnung nicht den DIN Maßen entspricht.
DIN-Richtung bei normalen Türen
Die DIN-Richtung können Sie ganz einfach selber feststellen. Stellen Sie sich vor die Maueröffnung auf die Seite zu der die Türe öffnen soll. Dann überlegen Sie in welche Richtung die Türe sich öffnen soll. Die DIN-Richtung gibt an, an welcher Seite die Türbänder sind, was gleichzeitig bedeutet, dass die DIN-Richtung die gegenüberliegende Seite des Türgriffs ist.

Sehen Sie den Türgriff links und die Türbänder rechts, dann benötigen Sie DIN-Rechts. Sehen Sie den Türgriff rechts und die Türbänder links, dann benötigen Sie DIN-Links. Wichtig ist die Betrachtung von der Seite, in die die Türe öffnen soll, bzw. auf der Sie die Türbänder sehen.
DIN-Richtung bei Schiebetüren
Schiebetüren haben nicht immer eine Angabe der DIN-Richtung, weil viele Schiebetüren sowohl nach links auch als nach rechts öffnend genutzt werden können. Sollte Die von Ihnen gewünschte Schiebetüre jedoch eine DIN-Richtung haben, stellen Sie sich auf die Seite der Wandöffnung an dem der Laufkasten bzw. die Laufschiene montiert wird. Das ist die Seite, auf der die Schiebetüre vor die Wand läuft. Soll die Schiebetüre nun nach rechts öffnen, benötigen Sie eine Schiebetüre in DIN-Rechts - soll diese nach links öffnen, benötigen Sie die Türe in DIN-Links.


VON UNSEREN EXPERTEN EMPFOHLEN
Unsere Produkte sind von unseren eigenen Schreinern in der Praxis erprobt! Sie haben Fragen zu unseren Produkten, oder zum Einbau?
📱Schreiben Sie uns per WhatsApp: +49 2266 465 2002
oder



















