











Zimmertür mit Zarge stumpfeinschlagend mit Lichtausschnitt LA2 ohne Schlüssellochbohrung CPL glatt brillant-weiß
Höhe x Breite
ungekürzt für Wandöffnung: Höhe 199,5 - 203,5 cm | Breite 87,5 - 91,5 cm | Zusätzlich unten um 50 mm kürzbar
Wandstärke
DIN Richtung

- Lieferzeit:
- 4-5 Wochen


Sie messen, wir bieten an
Ganz einfach Türen bestellen!
Laden Sie sich einfach unser Aufmaßformular herunter, füllen es aus und senden es uns per Mail oder Whatsapp. Wir erstellen Ihnen ein individuelles Angebot mit allen benötigten Produkten.
Ihr Angebot können Sie mit einem Klick annehmen!
Auf Nummer sicher gehen
Oberflächenmuster bestellen
Bestellen Sie einfach und sicher Ihr Oberflächenmuster und machen Sie sich ein Bild von der Oberfläche in den eigenen vier Wänden. Halten Sie die Muster an vorhandene Türen, Boden- oder Wandbeläge oder an Ihre Möbel.
- brillant-weiß ähnlich RAL 9003
- Türblatt & Zarge mit besonders robuster CPL Oberfläche
- Kante Türblatt: stumpfe Kante (eckige Optik, mit Nullfuge, Protect-Kante 0,8 mm)
- Hochwertige Röhrenspan-Mittellage
- Schlichte Optik ohne Schlüssellochbohrung
- hochwertige Tecus Bänder 340 (3D verstellbar)
- Zarge Kante: Moderne Designkante (eckige Optik, leicht abgerundet, 2-3 mm Radius)
- Zarge mit 70 mm Bekleidungsbreite und 16 mm Umbug (Stärke der Bekleidung)
Brillant-weiß (seidenmatt)
Bei unserem Farbton brillant-weiß handelt es sich um ein helles Weiß, ähnlich RAL 9003. Das moderne Weiß wird häufig mit extraweißen Wandfarben und modernen hochweißen Möbeln kombiniert. Besonders im Neubau & der Kernsanierung, sowie bei modernen Rillentüren ist das kalte Weiß sehr gefragt. Die Oberfläche ist seidenmatt.
CPL - robust und pflegeleicht
Hochwertige Röhrenspan-Mittellage
Diese Tür hat eine hochwertige Mittellage aus einer Röhrenspanplatte. Im Vergleich zu Türen mit einer günstigen Waben-Einlage, zeichnet sich die Röhrenspan-Mittellage durch eine viel bessere Stabilität und viel besseren Schallschutz aus. Durch das höhere Gewicht, wirkt die Tür außerdem beim Öffnen und Schließen sehr wertig.
Unsere Türen mit Röhrenspan-Mittellage sind bauseitig je nach Modell um 1,5 - 5 cm kürzbar. So können Sie Tür und Zarge vor Ort kürzen, falls Ihre Maueröffnung nicht den DIN Maßen entspricht.
Sie möchten neue Türen bestellen, wissen aber nicht welches Maß Sie benötigen? Kein Problem, wir helfen Ihnen gerne!
Um festzustellen welches Maß Sie benötigen, müssen Sie erst ein sogenanntes Aufmaß vornehmen. Dabei gehen Sie die einzelnen Türen bzw. Türöffnungen ab, nehmen mit einem Zollstock Maß und notieren die Ergebnisse auf einem Aufmaßblatt. Hier geht es zu unserer Aufmaßanleitung mit Aufmaßblatt
Das zu bestellende Maß, hängt von Ihrer Maueröffnung ab. Die Maße gelten immer ab Oberkante Fertigfußboden. Bei den Wandstärken der Zargen sind immer Wandbeläge wie z.B. Fliesen oder ein Fliesenspiegel zu berücksichtigen.
Höhe von Tür und Zarge
Höhe Wandöffnung | Höhe Türblatt (Bestellmaß) | Höhe Glastür* |
---|---|---|
200,0 - 202,0 cm | 198,5 cm | 197,2 cm |
212,5 - 214,5 cm | 211,0 cm | 209,7 cm |
Breite von Tür und Zarge
Breite Ihrer Wandöffnung | Breite Türblatt (Bestellmaß) | Breite Glastür* |
---|---|---|
62,5 - 65,5 cm | 61,0 cm | - |
75,0 - 79,0 cm | 73,5 cm | 70,9 cm |
87,5 - 91,5 cm | 86,0 cm | 83,4 cm |
100,0 - 104,0 cm | 98,5 cm | 95,9 cm |
Im Neubau empfiehlt es sich die Maueröffnung ca. 10-15 mm breiter als die Maueröffnung nach DIN Norm anzulegen, um unnötige Nachstemmarbeiten am Mauerwerk zu verhindern.
* Bei Glastüren wird das Maß anders angegeben, da das Glastürblatt im Zargenfalz liegt und nicht wie eine normale Zimmertür, außen auf der Zarge aufschlägt. Beispiel: Für eine Zarge mit den Maßen 198,5 x 86 cm hat die Glastür die Maße 197,2 x 83,4 cm.
Wandstärke der Zarge
Stärke Ihrer Wand (Verstellbereich der Zarge) |
Wandstärke Zarge (Bestellmaß) |
---|---|
7,5 - 9,5 cm | 8,0 cm |
9,5 - 11,5 cm | 10,0 cm |
11,5 - 13,5 cm | 12,0 cm |
13,5 - 15,5 cm | 14,0 cm |
15,5 - 17,5 cm | 16,0 cm |
17,5 - 19,5 cm | 18,0 cm |
19,5 - 21,5 cm | 20,0 cm |
21,5 - 23,5 cm | 22,0 cm |
23,5 - 25,5 cm | 24,0 cm |
25,5 - 27,5 cm | 26,0 cm * |
26,5 - 28,5 cm | 27,0 cm |
28,5 - 30,5 cm | 29,0 cm |
29,5 - 31,5 cm | 30,0 cm |
32,5 - 34,5 cm | 33,0 cm |
* Bei der 26,0 cm Wandstärke handelt es sich um eine Zwischenwandstärke als Sonderanfertigung. Diese ist ca. 35 % teurer, hat eine erheblich längere Lieferzeit und ist von der Rückgabe ausgeschlossen. Wir empfehlen je nach Wandstärke die 27,0 cm Zarge zu wählen und entstehende Fugen mit Acryl zu verschießen.
Ist die gemessene Wandstärke kleiner, als das Bestellmaß der Zarge, entsteht ein kleiner Abstand von wenigen mm zwischen Wand und Zargenbekleidung, der ggf. mit Maler-Acryl ausgespritzt werden muss. Da häufig schon durch das lotrechte ausrichten der Zargen bei der Montage einige mm des Verstellbereichs einer Zarge verloren gehen, empfehlen wir eher im Grenzfall eine größere Zarge zu bestellen.
DIN-Richtung bei normalen Türen
Die DIN-Richtung können Sie ganz einfach selber feststellen. Stellen Sie sich vor die Maueröffnung auf die Seite zu der die Türe öffnen soll. Dann überlegen Sie in welche Richtung die Türe sich öffnen soll. Die DIN-Richtung gibt an, an welcher Seite die Türbänder sind, was gleichzeitig bedeutet, dass die DIN-Richtung die gegenüberliegende Seite des Türgriffs ist.

Sehen Sie den Türgriff links und die Türbänder rechts, dann benötigen Sie DIN-Rechts. Sehen Sie den Türgriff rechts und die Türbänder links, dann benötigen Sie DIN-Links. Wichtig ist die Betrachtung von der Seite, in die die Türe öffnen soll, bzw. auf der Sie die Türbänder sehen.
DIN-Richtung bei Schiebetüren
Schiebetüren haben nicht immer eine Angabe der DIN-Richtung, weil viele Schiebetüren sowohl nach links auch als nach rechts öffnend genutzt werden können. Sollte Die von Ihnen gewünschte Schiebetüre jedoch eine DIN-Richtung haben, stellen Sie sich auf die Seite der Wandöffnung an dem der Laufkasten bzw. die Laufschiene montiert wird. Das ist die Seite, auf der die Schiebetüre vor die Wand läuft. Soll die Schiebetüre nun nach rechts öffnen, benötigen Sie eine Schiebetüre in DIN-Rechts - soll diese nach links öffnen, benötigen Sie die Türe in DIN-Links.


VON UNSEREN EXPERTEN EMPFOHLEN
Unsere Produkte sind von unseren eigenen Schreinern in der Praxis erprobt! Sie haben Fragen zu unseren Produkten, oder zum Einbau?
📱Schreiben Sie uns per WhatsApp: +49 2266 465 2002
oder


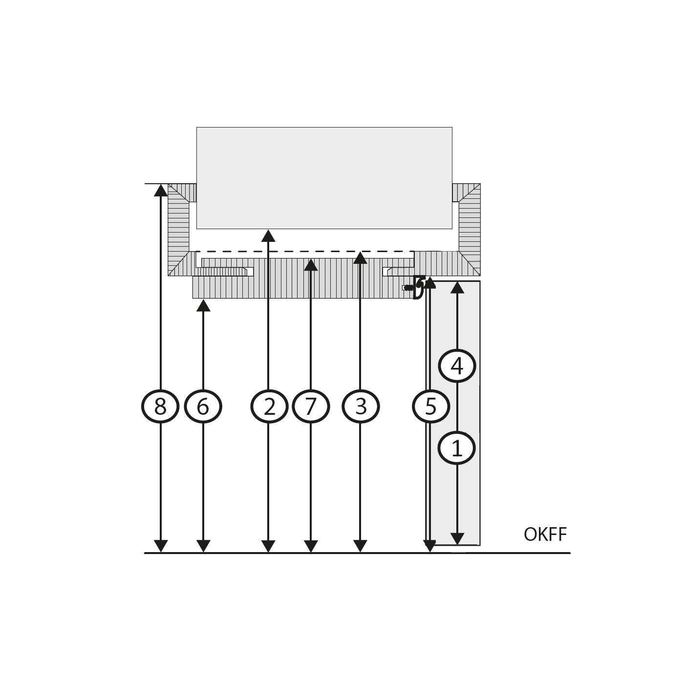
Breitenmaße
(1) Bestellmaß = Türblattaußenmaß stumpf
(2) MÖM = ideales Maueröffnungsmaß *
(3) BRM = Baurichtmaß nach DIN 18100
(4) TFM = Türfalzmaß
(5) ZFM = Zargenfalzmaß
(6) LDM = lichtes Zargendurchgangsmaß
(7) FPAM = Futterplattenaußenmaß
(8) BAM 70 = Bekleidungsaußenmaß bei 70 mm Bekleidung
Höhenmaße
(1) Bestellmaß = Türblattaußenmaß stumpf
(2) MÖM = ideales Maueröffnungsmaß *
(3) BRM = Baurichtmaß nach DIN 18100
(4) TFM = Türfalzmaß
(5) ZFM = Zargenfalzmaß
(6) LDM = lichtes Zargendurchgangsmaß
(7) FPAM = Futterplattenaußenmaß
(8) BAM 70 = Bekleidungsaußenmaß bei 70 mm Bekleidung
Alle Maße im Überblick
(1) Bestellmaß | (2) MÖM * | (3) BRM | (4) TFM | (5) ZFM | (6) LDM | (7) FPAM | (8) BAM 70 |
---|---|---|---|---|---|---|---|
584 mm (Breite) | 625 - 655 mm | 625 mm | 584 mm | 591 mm | 567 mm | 613 mm | 731 mm |
709 mm (Breite) | 750 - 790 mm | 750 mm | 709 mm | 716 mm | 692 mm | 738 mm | 856 mm |
834 mm (Breite) | 875 - 915 mm | 875 mm | 834 mm | 841 mm | 817 mm | 863 mm | 981 mm |
959 mm (Breite) | 1000 - 1040 mm | 1000 mm | 959 mm | 966 mm | 942 mm | 988 mm | 1106 mm |
1091 mm (Breite) | 1035 - 1075 mm | 1125 mm | 1084 mm | 1091 mm | 1067 mm | 1113 mm | 1231 mm |
1972 mm (Höhe) | 2000 - 2020 mm | 2000 mm | 1972 mm | 1979 mm | 1968 mm | 1990 mm | 2050 mm |
2097 mm (Höhe) | 2125 - 2145 mm | 2125 mm | 2097 mm | 2104 mm | 2093 mm | 2115 mm | 2175 mm |